Telephely eladó, Izsák, ára: 140 m Ft, kód: 20260316

  •  Telephely eladó, Izsák, ára: 140 m Ft, kód: 20260316
 Telephely eladó, Izsák, ára: 140 m Ft, kód: 20260316

ELADÓ TELEP!

TELEPHELY

IZSÁK

irányára: 140 millió forint

500 nm alapterület, 3 szoba. 6.815 nm telekkel.

Kód: 20260316

Ismertető

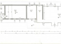
IZSÁKON TELEP - TELEPHELY - MŰHELY - RAKTÁR ELADÓ!

Izsák KÜLTERÜLETÉN eladó TULAJDONI LAP szerint KIVETT TELEPHELY!

Épületek:

Lakás/ 25 nm szoba, 20 nm szoba, 13 nm szoba, 6 nm konyha, 16 nm nappali és étkező, 5 nm fürdő + wc.

Összesen: 85 nm

Lakás, Raktár, 13 nm Iroda, 63 nm Műhely, 28 nm + 22 nm + 128 nm Üzem.

Valamint pince, szociális épületek, raktár, gépház.

Közmű:

Villany 3 fázis nappali és 3 fázis éjszakai áram, 7 kw -ig, 3 X 32 A fel lehet bővíteni.

A légkábel 140 A bír el.

Transformátor állomás.

Vízjogi engedélyes kút 17 m , valamint D 110 átmérős 48 méter mély kút ( nem bevizsgált).

+ Van lehetőség 38 m 1 colos kút, amely jelenleg nincs üzemben.

Szeennyvíz zárt tárolóval üzemel.

Az egyik hrsz-en a terület 2.937 nm és az épület 500 nm nagyságú.

irányára: 140 millió forint

1 hrsz:

2.937 nm Fennmaradási engedély szerint lakóépület, alkatrész gyártó, megmunkálló műhely.

120 millió forint

2 hrsz:

3.878 nm KIVETT TELEPHELY

20 millió forint

 

További terület vásárlására is van lehetőség:

4.000 nm terület nagyság, szántó, 3 fázis, 50 A, fúrt kút D 90 átmérő 48 méter mélységű, D 60 locsoló rendszer

35 millió forint

Megtekintéssel kapcsolatban hívjon bizalommal: 06 70 354 2352 telefonszámon!

 

Tulajdonságok

Alap adatok

  Alapterület: 500 nm
  Szobák: 3

Ingatlan adatok

  Telekméret: 6.815 nm


Így ismerheti még

Izsák, eladó ingatlan, telep, telephely, műhely, raktár, ingatlan.

További információk

A megbízó vagy az ingatlan tulajdonosa felvilágosítást kapott arról, hogy tájékoztatási kötelezettséggel rendelkezik az ingatlan energiafogyasztási értékeiről, ill. hogy be kell mutatnia egy energiatanúsítványt. A honlap tulajdonosa nem vállal felelősséget vagy szavatosságot az adott ingatlan tényleges energiahatékonyságáért, sem pedig az energiaértékek bemutatási kötelezettségéért.
Jutalék: nettó %+ Áfa, valamint minimál díj. Ászf itt. Érdeklődés és kapcsolatfelvétel itt!

© 2017 Copyright videkiingatlan.hu, Minden jog fenntartva - All rights reserved.